多次聽說過八吉星的您,是不是也想找八吉星商用廚房工程公司設計裝修廚房?但是又不知道八吉星商用廚房工程的實力而惆悵?下面八吉星商用廚房工程為您解憂。
與八吉星商用廚房工程合作的客戶案例有很多,以下小編以圖片的形式舉例。

與八吉星合作的商用廚房有:中央廚房、大型食堂廚房工程、連鎖餐飲廚房、社會餐飲廚房、星級酒店廚房等各類商用廚房工程,也給商用廚房企業配套全套設備。

八吉星商用廚房工程各類證書、商廚設備各類證書及營業執照。
八吉星5大優勢:
1、價格透明:八吉星擁有多家直屬廚具設備品牌生產廠家及研發基地實現價格同步(僅直屬線上品牌),價格透明可查。

2、全國覆蓋:八吉星與海爾旗下分公司"日日順",并往全國各地設辦事處發展,可快速響應客戶廚房問題工程需求上門服務。

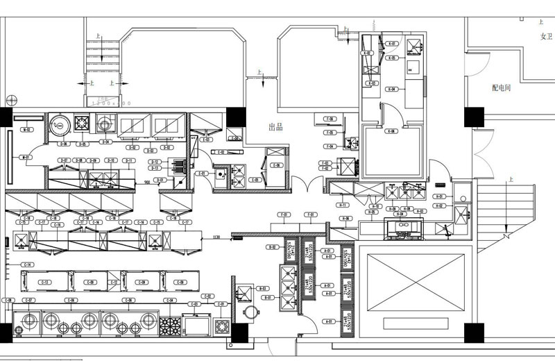
3、快速設計:專業廚房工程師獲取客戶基本工程需求后,最快24小時內(中小型商廚)完成專屬于您的商用廚房工程設計平面圖。
4、快速報價:八吉星在獲取客戶廚房工程需求后,最快48小時內(中小型商廚)快速提供合適您的廚房工程及設備報價清單。


八吉商用廚房工程公司位于:廣東省東莞市虎門鎮金捷路5號-北斗星大樓,辦公面積在北斗星大樓2-7層都是,約2400平方米,辦公人員約200人;另在湖南、四川設立了分公司,還在全國各地設立辦事處。

以上圖片為八吉星商廚工程所有,我們期待您能到八吉星辦公地、廚房設備生產廠家現場視擦觀摩。八吉星的實力需要您的見證,希望您能給八吉星商用廚房工程公司一個與您合作的機會。




