


馳能品牌旗下廚房工程公司
線上線下同步的商廚工程服務商
全國免費服務熱線:
134-1596-7896
400-888-4168
馳能廚房工程
線上線下同步的商廚工程服務商
設備配套 | 價格透明 | 上門勘察 | 專屬設計 | 輕松過檢 | 快速報價 | 風水布局
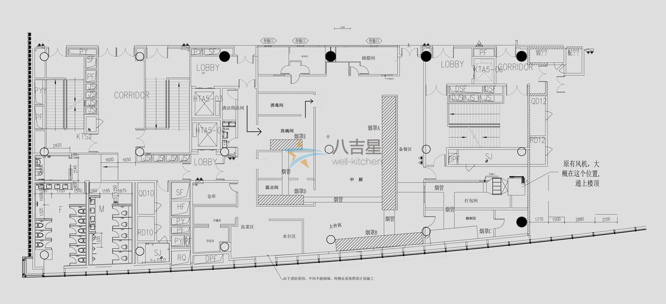
油煙是廚房烹飪中常見的污染物,在商用廚房中油煙凈化除味工程是必不可少的一道工序,這是因為任何餐廳,飯堂,酒店等商業餐飲場所在運營廚房之前都必須經過政府環保部門的廢氣排放檢測,只有達到排放標準才能正式運營。
在廚房運營的過程中會產生大量的油煙,如果缺乏強力的油煙凈化功能會導致廚房滯留大量的油煙,影響廚師的烹飪,損害菜品出品品質,嚴重甚至影響顧客用餐。
沒經過油煙凈化除味的廢氣在排放后會導致大范圍覆蓋,嚴重影響附近住戶的生活環境還會造成嚴重的人身健康影響,很容易導致報警投訴,輕則警告整頓,重則終止營業并接受行政處罰,因此油煙凈化除味工程是所有商用廚房必須搭配油煙凈化廚房工程。

八吉星油煙凈化除味工程可根據客戶廚房具體情況,工程預算規劃,當地政府環保排放標準進行全方位設計,施工,凈化設備配套,運行測試及環保檢測流程協助。
八吉星旗下擁有直屬油煙凈化除味設備生產線,并與多家知名商廚凈化品牌達成合作,提供設備配套服務,囊括入門級乃至高端商廚設備配套,滿足不同用戶的需求。
|
|
|
|
|
馳能專注油煙凈化除味工程,打造專屬于您的油煙凈化除味工程
八吉星廚房工程師親臨現場,獲取客戶具體需求以及工程現場基本參數,提供工程設計,施工,設備配套,安裝,檢測,過檢協助,售后服務一站式油煙凈化除味工程解決方案。


八吉星會廚房工程師親臨現場對客戶需求及工程現場進行基本資料獲取,根據具體需求和現場情況進行油煙凈化除味工程設計,不管是毛坯還是已完成裝修均可滿足您的需求。

八吉星油煙凈化除味工程在接受政府檢測的過程中會提供全程協助和調整,直到整個油煙工程通過檢測。

八吉星以全國連鎖廚房工程公司而努力,標準化工程服務,在各大重點城市開設服務網點,為周邊客戶提供優質工程服務,聯合多家專業商廚設備工程師及廚房工程師上門服務,全程無縫對接,精確掌握客戶需求,迅速響應用戶售后問題,降低由于設備問題導致的經營損失。

全國統一服務體驗,工廠直供廚房設備配套,商用廚房工程解決方案服務商
直屬廚具設備生產廠家及研發基地,實現價格同步,價格透明可查。
全國各地設有辦事處,快速響應客戶廚房工程需求上門服務。
專業廚房工程師最快24小時內完成商用廚房工程設計平面圖。
馳能最快48小時內快速提供廚房工程及設備報價清單。
馳能全國連鎖式廚房工程公司模式提供全國統一售后服務體驗。
以倡導商用廚房運作新模式、引領商用廚房科技導向為己任,做客戶身邊可信賴的服務商。
其前身為廣東明寶廚房工程設備有限公司成立于2012年,從單一廚房工程公司逐步成為一個全產業鏈化的綜合型公司,為配合發展,于2020年整合明寶廚房工程,2024年整合八吉星廚房工程設備業務,線上銷售業務、線下代理商渠道為廣東玖尚電子科技有限公司。
相對于其他廚房工程公司,馳能具有獨特的互聯網+基因。在2013年即啟動電商營銷團隊。并攜手多家專業商用廚房設備品牌,并且連續5年全網銷量第一。
您的基本數據有助于我們的設計師快速設計工程平面圖及報價清單
我們需要根據您的廚房面積,為您的廚房設計功能性布局圖。
我們需要根據您廚房的用餐人數,對您的廚房進行針對性地設計。
我們需要了解您廚房每天的開餐次數,為您的廚房設備設計提供參考。
我們需要提供給我們您食堂的標準定為:豪華的?普通的?大型的?小型的?
用戶是企業發展的源泉。
優質產品,是走向世界的橋梁。
保證質量,是對社會的承諾。
用心服務
我用心 ? 您放心
馳能廚房工程用心踐行,走好每一步,讓客戶安心。
通過咨詢或填寫表單,預約免費上門勘察
專業工程團隊免費上門勘察,客戶需求采集
根據客戶需求以及現場考察,快速設計出稿
根據客戶需求出稿后待客戶確認設計圖紙
專業施工團隊,全程由工程負責人監督
配套廚房設備定制完成后,有序運送進場
雙方達成設計及工程服務共識,簽訂合同
根據確認圖紙及配套設備48小時快速報價
專業檢測人員對整套廚房設備進行全面試運營
施工完成,試運營沒問題后,供客戶驗收
進入正式運營,馳能專業團隊前期運營指導
廚房工程出現問題,均有專業人員上門服務