



廣州白云天降美食機器人中餐廳通過將全新的智能科技、機器人技術與不同品類、不同地域飲食及文化相融合,打造出更多各具特色,集健康、品質、效能、美味于一體,富有科技感的餐飲品牌。


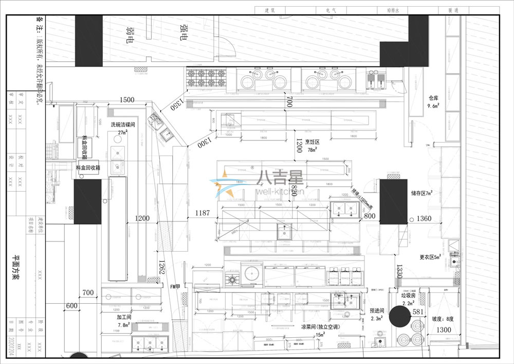
經過初次與天降美食機器人中餐廳(碧桂園集團旗下)合作打造一個機器人餐廳后廚后,深得碧桂園集團的認可,2021年1月份八吉星再次與碧桂園集團(廣州白云天降美食機器人中餐廳)合作打造設計機器人商用廚房工程解決方案。餐飲機器人具有安全無接觸式服務、食材生產加工全流程電子溯源、供餐服務效率高、24小時全天候運作、全系統智慧一體化管理等優勢。



傳送食物的云軌系統

智能配餐機器人

送餐機器人
在傳統的手工烹飪基礎上,智慧商用廚房機器人標準化烹飪能夠讓出品菜肴的質量更加穩定,解決品質不穩定、口味差異大等問題,同時也提高出品速度和生產效率。更為重要的是,在后疫情時代,無接觸的機器提供的餐飲,更符合人們對健康的需求趨勢。





